La Solution Conteneur 3×5 m – Gagnez de l’Espace à Petit Budget
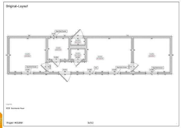
Conteneur de 3,0 mx 13,0 m avec 2 chambres, salle de bain et cuisine
Le prix du conteneur comprend :
- Deux chambres avec fenêtres fixes (100 x 200 cm)
- Séjour avec porte vitrée (100 x 210 cm), fenêtre fixe (100 x 200 cm) et fenêtre oscillo-battante (100 x 200 cm)
- Kitchenette (plaques), réfrigérateur, plaque à induction deux feux, évier et hotte aspirante
- Salle de bain de qualité avec douche, lavabo et fenêtre oscillo-battante (50 x 50 cm)
- Toilettes séparées
- Climatisation
- Buanderie avec chauffe-eau
- 12 prises électriques
- Éclairage dans chaque pièce

Le plan du conteneur est disponible dans les images.
Spécifications techniques de l'unité standard :
Pavillon isolé en panneaux sandwich
- Murs : panneaux sandwich PIR, épaisseur : 100 mm
- Coefficient de transmission thermique : 0,22 W/m²K, couleur : RAL 7016
- Plancher : panneaux sandwich polyuréthane, épaisseur : 100 mm
- Coefficient de transmission thermique : 0,22 W/m²K, plus 15 mm d'OSB
- Revêtement de sol en PVC (couleur au choix), PVC coloré avec lames
- Revêtements extérieurs : 2 éléments
- Toiture inclinée : panneaux sandwich PIR, épaisseur : 100 mm
- Coefficient de transmission thermique : 0,22 W/m²K Couleur RAL 9006
Structure en acier
- Fenêtres oscillo-battantes standard 100 x 200 cm ou 100 x 100 cm
- Portes vitrées standard 100 x 210 cm ou 200 x 210 cm
- Fenêtre fixe standard (non ouvrante) 100 x 200 cm
- Tôlerie intérieure noire RAL 9005
Installation électrique et de plomberie selon spécifications
- Chauffage
- Climatisation
- Système d'alarme
- Portes et fenêtres sur mesure
- Cloisons ou pièces supplémentaires
- Salle de bain ou WC
- Radiateur dans la salle de bain
Equipements cuisine
- Réfrigérateur avec compartiment congélateur
- Lave-vaisselle
- Four
- Évier
- Hotte aspirante
- Micro-ondes
- Plaque à induction (2 ou 4 feux)
- Magasins
- Prises électriques
- Éclairage extérieur et intérieur
Ceci est un modèle de base. Nous pouvons personnaliser tous les conteneurs selon vos besoins.
Les frais de livraison sont calculés individuellement et ne sont pas inclus dans le prix.
Contactez-nous pour une consultation personnalisée et une séance de planification.
Les délais de livraison sont disponibles sur demande. Les suppléments et les options disponibles sont consultables sur notre site web.
Nos avantages
- livraison pris en charge à 50%
- -25% sur nos conteneurs
- En stock et prêt pour l'expédition
- Livraison Partout en PORTUGAL !